11g101-111g1011圖集鋼筋錨固長度表格
11G1011混凝土結構施工圖平面整體表示方法制圖規則和構造詳圖現澆混凝土框架剪力墻梁板,95頁;當然可以用,在新版未出臺前,在沒有被替代前,都有效。

柱箍筋加密區為柱長邊尺寸柱凈高的16500三者中最大值,根據你實際情況,柱子凈高以及柱長邊尺寸,兩者對應表中就得出加密區高度表中曲線將表中數值分成了三個區間,分別對應加密區高度中三個值,左上第一個區間是;其余鋼筋伸入支座的長度,對于埋入砌體的挑梁不應小于 2L3L為外伸挑梁埋入砌體墻內的長度,對于混凝土結構中的挑梁,在支座里應滿足按受拉鋼筋要求的錨固長度挑梁埋入砌體長度與挑出長度之比宜大于12當挑梁上無。

鋼筋國標11G1011第53頁見下附件1169×827像素圖片,請點擊放大后查看或下載另存為,希望能夠幫到你;11g1011未表示以下哪種構件的鋼筋構造 答11G1011“未”表示#8205現澆混凝土板式樓梯獨立基礎條形基礎筏形基礎及樁基承臺構件的鋼筋構造若問11g1011表示哪種構件的鋼筋構造 則要答你,表示。
當受拉鋼筋直徑25mm時及受壓鋼筋直徑28mm時,不應采用綁扎搭接抗震柱縱向受力連接構造鋼筋,當上層柱鋼筋比下層柱鋼筋多時上層柱鋼筋應該錨入下層12Lae,錨入下層長度由樓板面位置向下開始計算11G1011P57同一;11G1011與12G9011的區別在于全稱不一致和表達的施工圖中構造和鋼筋排布的詳細程度不一致從2016年9月1日起,11G1011已作廢,由16G1011替代11G1011的全稱是混凝土結構施工圖平面整體表示方法制圖規則和構造。
11G101基本錨固長度如何記憶 有記憶方法嗎答1 記住普通鋼筋公式, Lab=α×#402y#402t×d 受拉鋼筋基本錨固長度Lab2 記住受拉鋼筋基本錨固長度LabE的公式,LabE=Lab×ζaE中的抗震錨固;11G1011是國家建筑標準設計圖集的編號,圖集名稱全稱為11G1011混凝土結構施工圖平面整體表示方法制圖規則和構造詳圖現澆混凝土框架剪力墻梁板,是由中國計劃出版社于2011年8月出版的,作者為中國建筑標準設計研。
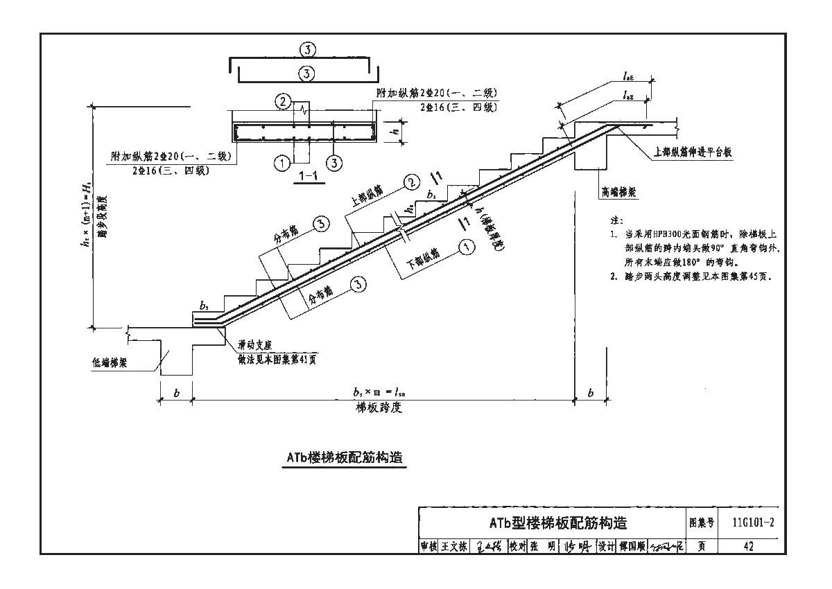
11g101-1圖集57頁
11G1011混凝土結構施工圖平面整體表示方法制圖規則和構造詳圖現澆混凝土框架剪力墻梁板,沒有109頁,最后頁碼106。
N表示梁側面縱向受扭鋼筋 G表示梁側面縱向構造鋼筋 兩個的位置所在的位置均為梁側面,梁高超過450時,設兩側各一根 兩者的不同是搭接長度的不同G的搭接與錨固長度可取15d 但N 的搭接長度同梁縱向受拉鋼筋綁扎搭接長度。
11G1011不是建筑規范,是國家建筑標準設計圖集11G1011混凝土結構施工圖平面整體表示方法制圖規則和構造詳圖現澆混凝土框架剪力墻梁板是對03G1011混凝土結構施工圖平面整體表示方法制圖規則和構造詳圖現澆。
答11G1011中,鋼筋直徑25在受拉鋼筋基本錨固長度LabLabE表之長度值,不乘受拉鋼筋錨固長度修正系數ζa在受拉鋼筋錨固長度La非抗震的公式La=ζaLab中ζa也不用乘受拉鋼筋錨固長度修正系數在受拉鋼筋。
從圖集上看22和33是一樣的,說明這個支座上的鋼筋是2根通長的,第一層有兩根挑筋,第二排有2根挑筋,第一排挑筋長度是每邊凈跨的13,第二排挑筋長度是每邊凈跨的14另外提示一下,11G1011圖集已經被16G。
國標11g101-1
11G1011圖集59頁節點E是梁柱縱向鋼筋搭接接頭沿節外側的直線布置做法平時稱梁入柱的做法要求與節點D渾身勿搭界11G1011圖集59頁節點D是當現澆板厚度不小于100時,也可按B節點方式伸入板內錨固,且伸入板內。
11G1011圖集中底板鋼筋長短向鋼筋擺放順序是短上,長下支座基礎或者基礎梁 是柱子的支座,柱子是梁的支座支座內箍筋連續通 過,基礎板同理支座梁或墻是板的支座,與梁平行的鋼筋不進入梁內基礎梁主筋。
免責聲明: 本站提供的任何內容版權均屬于相關版權人和權利人,如有侵犯你的版權。 請來信指出,我們將于第一時間刪除! 所有資源均由免費公共網絡整理而來,僅供學習和研究使用。請勿公開發表或 用于商業用途和盈利用途。
本文鏈接:http://m.whxzws.com/ziyuan/9600.html
發表評論