07fj02圖集113頁,07fj02圖集
1、07fj02圖集126頁見下附件,1654×1169像素圖片圖集號02J4010203J401 專業標準類別標準圖圖集介紹本圖集適用于一般工業與民用建筑,包括普通鋼梯鋼螺旋梯吊車鋼梯作業臺鋼梯屋面檢修鋼梯戶內鋼梯,及。
2、07fj02人防圖集第106頁如圖人民防空工程亦叫人防工程,是指為保障戰時人員與物資掩蔽人民防空指揮醫療救護而單獨修建的地下防護建筑,以及結合地面建筑修建的戰時可用于防空的地下室早期人防 在60年代末70年代初,我國。
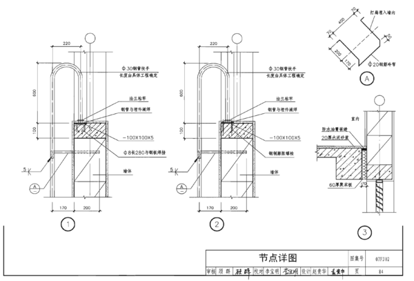
3、07FJ02防空地下室建筑構造,第84頁節點詳圖的標高圖集的節點詳圖不會規定標高的,因為工程規模情況是各不相同是由設計確定圖紙中標高已經標注好了只要細心地找參考資料07FJ02防空地下室建筑構造。
4、07fj02人防圖集第107頁節點詳圖見下附件,2840×1998像素圖片,請下載右鍵單擊目標另存為后查看,希望對您有點幫助。
5、人防,簡單就是防空設施可以抵御空襲核爆襲擊等災難性情況的設施,人防設計跟普通上部建筑物的結構設計有所不同,很多參數都需要查看專門的人防設計規范,這是最大的不同,人防圖紙跟平面圖,大致相同地下室有兩種作用一。

6、07fj02人防圖集114頁見附件,1654×1169清晰大圖,請點擊放大后查看或下載另存為,望采納。
7、07FJ02 防空地下室建筑構造,第133頁防洪擋板做法。
8、07fj02圖集126頁見下附件,1654×1169像素圖片,請點擊放大后查看或下載另存為,希望能夠幫到你。
9、國標07fj02第110一111見下附件,1654×1169像素圖片標準表示強制標準冠以“GB”推薦標準冠以“GBT”與很多ISO國際標準相比,很多國家標準等同采用IDT,identical to 其他標準修改采用MOD,modified in。
10、07fj02防空地下室建筑構造標準圖的第103頁是外附壁式防爆電纜井的標準設計,見下圖。
11、07FJ0203現在04圖集已經很少用了,基本上用07圖集,建設部的。
12、人防防護密閉門的做法圖集在雙扇防護密閉門密閉門和門框墻選用圖集GJBT311人防門人防門是屬于民防防護設備,人防門就是人民防護工程出入口的門。
13、問題六GB07FJ02第84頁鋼爬梯理論重量每米多少 20分 07fj02爬梯重量由邏輯的或數學的陳述所連接的一組假設或命題,他對經驗現實的某供領域或某一類現象提出解釋,在不太嚴格的意義上,有關現實某一領域的任何抽象的。
14、建筑人防圖集上是有做法的,你可以買本圖集看看有的人防門下面設計的是活門檻,有的是死門檻,活門檻只有戰時封堵的時候才安上去,平時是不安的如果是死門檻的話,結構施工圖上應該有門檻的高度和配筋。
15、07FJ02 防空地下室建筑構造,第119120頁如下,正確請采納。

16、07FJ02 防空地下室建筑構造,107頁。
免責聲明: 本站提供的任何內容版權均屬于相關版權人和權利人,如有侵犯你的版權。 請來信指出,我們將于第一時間刪除! 所有資源均由免費公共網絡整理而來,僅供學習和研究使用。請勿公開發表或 用于商業用途和盈利用途。
本文鏈接:http://m.whxzws.com/ziyuan/12171.html
發表評論