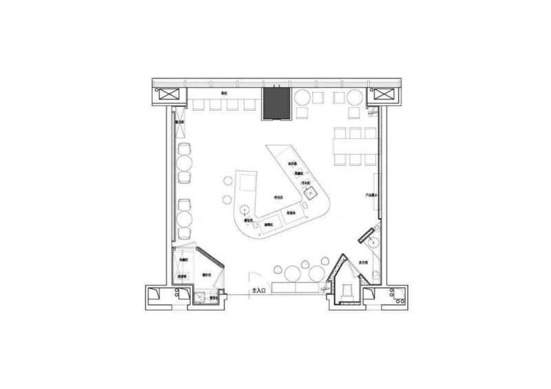
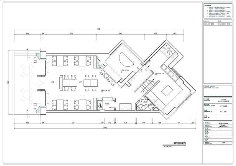
店面平面圖店面平面圖設計圖紙
第一步首先讓朋友拍幾張店面的素材,用來繪制平面圖時做參考來源第二步打開office辦公軟件,標題輸入xxx經營場所平面圖,然后選擇菜單欄插入文本框,繪制合適大小的操作邊框第三步在步驟2繪制的文本框里按照實際操作空間的情況繪制相應的文本框,并標明相應位置的作用及放置的東西,用拍好的。

問題一生產經營場所場地方位圖如何畫 這個很簡單的,一般方位圖就是把你經營地址所在的地址畫出來,街道可以用兩條平行直線表示,方向你就畫個十字加表明經營地址的東南西北,平面布局圖一般店面表示為一個方框,將貨架和柜臺用小的長方形表示,并用文字標明,店面門口也用長方型表示,標明出口位置,就。

免責聲明: 本站提供的任何內容版權均屬于相關版權人和權利人,如有侵犯你的版權。 請來信指出,我們將于第一時間刪除! 所有資源均由免費公共網絡整理而來,僅供學習和研究使用。請勿公開發表或 用于商業用途和盈利用途。
本文鏈接:http://m.whxzws.com/ziyuan/23807.html
發表評論