消防施工圖片高清,消防施工圖
首先我們看聯縱消防科技5L10L二代自動消防水炮安裝圖,因為5升10升水炮使用量很大,所以此消防水炮安裝圖片相當重要一5L10L二代自動消防水炮安裝圖注意事項1消防水炮吊裝安裝要距四周障礙物至少有 50CM,不得阻擋水炮 360 度旋轉2消防水炮法蘭處有此線朝墻標志,此標志需;消防部門施工圖需要審查一般建筑設計院出的施工圖要同時報圖紙審查單位和消防部門,通常是由建設方報審經審查確認或修改確認后審查通過則可以施工若其中因二次裝修更改,引起局部消防設施變更,應另行將相關變更內容報消防部門審查,此時一般不再報施工圖審查部門施工圖審查的各個環節可按以下步驟辦理。
6道路廣場的主要坐標或定位尺寸,停車場及停車位消防車道及高層建筑消防撲救場地的布置,必要時加繪交通流線示意7綠化景觀及休閑設施的布置示意,并表示出護坡擋土墻,排水溝等8指北針或風玫瑰圖9說明欄內注寫尺寸單位比例地形圖的測繪單位日期,坐標及高程系統名稱,補充;1此消防報警系統應該采用的是總線制2看你的系統圖截圖,從左到右分別是1個帶電話插孔的手動報警按鈕2臺應急電源箱,箱內或者箱上分別各裝有1個輸入輸出模塊最右邊的是總線電話分機這些消防工程量是都需要統計計算的3將系統圖中的幾種顏色的色做一下分類,粉色的線叫回路總線綠。
消防施工圖包括建筑施工圖建筑設備施工圖消防專業圖消防專業圖計算機輔助繪制等消防施工一門綜合性的學科,涉及與諸多學科的相互交叉滲透融合,它不僅涉及物理學化學數學機械電子建筑信息心理生理等多種自然科學學科,還涉及法學經濟學哲學管理學教育學災害學等等。
消防施工圖標符號大全
1、具 *** 置對著平面圖看,還應有相關圖冊作參照先看圖紙說明,了解一下建筑水電的要求,和各樓層的工序先看強電,再看弱點水圖先看給水再看排水你最好先到已蓋好的小區看一下,熟悉一下結構,再看看圖紙,再實踐一下,多想想再看看圖紙就能明白了問題四我正在學看消防施工圖,請教。
2、631 設計原則 消防系統的設計嚴格執行國家相關規范規程,并遵守項目當地消防部 門的規定,以期為客人創造一個安全的活動空間 如果酒店是綜合建筑群的一部分,要求酒店的消防系統與其它非酒店管 理的區域所使用的系統獨立分開且酒店宜設獨立的消防控制中心632 水消防。
3、消防施工圖是指在建筑施工過程中,為了保障人員的安全,制定的消防安全措施的圖紙它是施工現場必備的一種圖紙,能夠為消防人員提供必要的信息和指導,保障施工現場的安全消防施工圖的制定步驟 1制定消防安全措施方案 在制定消防施工圖之前,需要制定消防安全措施方案該方案應考慮到施工現場的特點,包括。
4、施工圖里面消防栓表示如下消防系統包括,室外消火栓系統,室內消火栓系統,滅火器系統,有的還會有自動噴淋系統,水炮系統,氣體滅火系統,火探系統,水霧系統等消火栓套裝一般由消防箱+消防水帶+水槍+接扣+栓+卡子等組合而成,消火栓主要供消防車從市政給水管網或室外消防給水管網取水實施滅火,也可以。
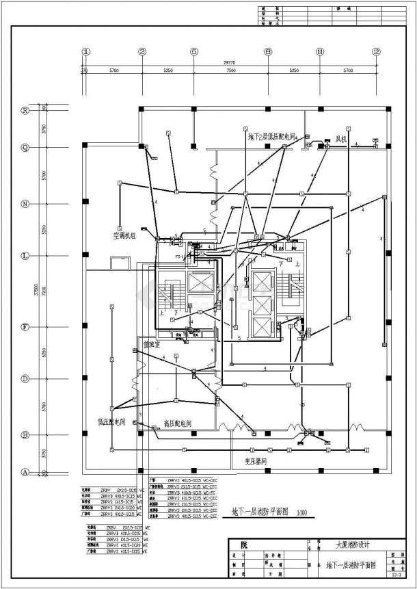
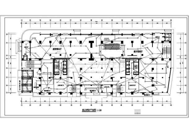
5、3消防施工圖大致是由平面圖和系統圖組成的,將平面圖和系統圖結合起來識讀對整個消防系統有一個概括性的了解然后,再對消防系統的每一個功能分區具體分析,具體到每一個設備每一個管段每一個附件這樣由粗到細對整個系統有了一個清晰的把握建筑消防給水設備安裝一工藝流程二質量要求噴頭安裝1。
6、1拿到消防水電安裝施工圖后,先看總說明中的消防部分,再看圖例,接著看系統圖,最后對應以上情況看圖紙平面圖還有水電圖紙會審記錄也必須看2施工圖,是表示工程項目總體布局,建筑物構筑物的外部形狀內部布置結構構造內外裝修材料作法以及設備施工等要求的圖樣3施工圖,是表示工程。
7、消防施工圖包括以下圖紙平面圖丶每層平面圖立面圖,給水系統圖,弱電圖,噴淋系統圖,自動報警系統圖,排風系統圖,裝修施工圖等消防施工的內容1火災自動報警系統施工,含火災警廣播消防聯動等2自動滅火系統施工,包括自動噴水滅火系統氣體滅火系統泡沫滅火系統注氮排油滅火系統等3。
消防施工圖施工公司自己出合規嗎
這個是表示軟接頭,用于與泵閥門的連接也用于震動較大的管道冷熱變化頻繁的管線。

s是信號通訊線,s1指的是報警回路線,線路上的K或者c指的是直接啟動線,方框中的M指的是消防模塊箱,方框中的C指的是控制模塊消防圖紙大致分4個專業,建筑電氣給排水暖通空調都有消防方面的要求籠統地說,要看懂圖紙,首先要學會基本識圖,這個是最基本的,可以到書店買建筑識圖的書或者。
消防施工圖屬于消防施工圖,接近于水電設備圖消防是獨立驗收的。
在看圖紙之前,必須先看透建筑平面圖入門一般在消防圖紙的左上方角落那里,會有明確的標記為消防入門2消防一般分水,電,風圖紙上可能比較復雜,花多眼亂,但要快速看懂圖紙,就要找核心先看建筑平面圖,要留意一些核心的位置,例如電房,機房,泵房,風機房等這些是消防各系統主要設備的位。
消防施工圖是在建筑施工圖的基礎上,結合消防藝術設計的要求,更詳細地表達了建筑空間的消防做法及整體效果它既反映了墻地頂棚三個面的消防構造造型處理和消防做法等的合理布置要看懂裝修施工圖,首先要看清楚圖紙是針對什么的,每張圖紙都是有針對性的另外要知道圖紙中各個符號所代表的含義。

首先要看圖紙它包含了哪些內容做到對整套圖紙的大致了解,整套圖紙包括封皮和目錄和設計說明和系統圖和照明平面圖和若電平面圖以及管井詳圖在系統圖上都有說明圖例和穿線用途及敷設方式看系統圖從消防主機開始,看看引向樓層線的名稱和規格,引出的類別大部分都是電源信號總線電話線消火栓。
免責聲明: 本站提供的任何內容版權均屬于相關版權人和權利人,如有侵犯你的版權。 請來信指出,我們將于第一時間刪除! 所有資源均由免費公共網絡整理而來,僅供學習和研究使用。請勿公開發表或 用于商業用途和盈利用途。
本文鏈接:http://m.whxzws.com/ziyuan/23236.html

發表評論