房屋構造圖,房屋構造圖紙
#xF50D剖面圖房屋的“內窺鏡”剖面圖展示了從切開處看到的房屋內部各層情況,讓你了解各個構件的位置尺寸及相互關系,以及各層標高它是了解房屋內部結構和構造的重要工具#xF3DB#xFE0F建筑與結構的視覺語言平面圖立面圖和剖面圖是建筑與結;2擴展基礎應繪出平剖面及配筋基礎墊層,標注總尺寸分尺寸標高及定位尺寸3樁基應繪出承臺梁剖面或承臺板平面剖面墊層配筋,標注總尺寸分尺寸標高及定位尺寸,樁構造詳圖結構平面圖 1建筑的結構。
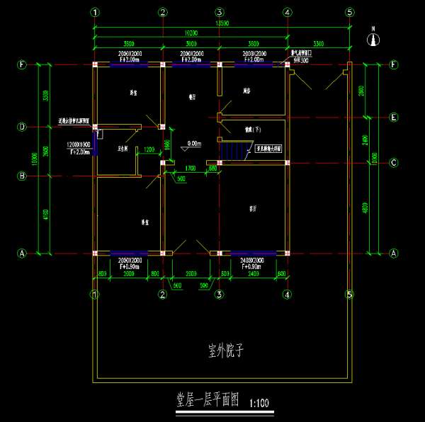
建筑平面圖是假想在房屋的窗臺以上作水平剖切后,移去上面部分作剩余部分的正投影而得到的水平剖面圖建筑工程施工圖簡稱“施工圖”,是表示工程項目總體 布局,建筑物的外部形狀內部布置結構 構造內外裝修材料做法以;一性質不同 1立面圖在與房屋立面平行的投影面上所作房屋的正投影圖,稱為建筑立面圖,簡稱立面圖2剖面圖又稱剖切圖,是通過對有關的圖形按照一定剖切方向所展示的內部構造圖例,剖面圖是假想用一個剖切平面將。
房屋建筑學剖面圖怎么畫 剖面畫法可以參見以往樣例,主要是剖切的是結構部分,區分樓板,柱子,梁之間的關浮,考慮全面,不要遺落看線等 什么是建筑剖面圖剖面圖用以表示房屋內部構造 什么是建筑剖面圖建筑剖面圖表示建筑;正房在住宅的院落中,位置處于正中坐北朝南的房子,稱為正房坐北朝南,北邊的就是正房,老式中國家庭居住在四合院時,一般是老人長輩一家之主住北房上房廂房在正房前面兩傍的房屋東邊的房子叫東廂房。
房屋構造圖8.5X9
房屋結構圖到房管局交易大廳調取也可以登錄相關網站,找到對應的房屋進行查看,當然也可以到房產局那邊進行查看,相對而言會比較清楚,如果你想要整棟樓房的房屋構造圖,則建議去檔案館進行查詢,不管是施工圖紙還是竣工材料都在。
#xF3E0結構施工圖的定義房屋的結構施工圖是根據房屋建筑中的承重構件進行結構設計后畫出的圖樣結構設計時要根據建筑要求選擇結構類型,并進行合理布置,再通過力學計算確定構件的斷面形狀大小材料及構造等#xF4D0結構施工圖的作用結構施工圖。
房屋結構圖是由建筑師或設計者精心繪制的圖紙,詳述了房屋的內在構造,為房屋的安全和穩固奠定了基石想一探房屋結構圖的奧秘嗎?下面就為你揭開它的神秘面紗#xF468#x200D#xF3A8建筑師或承包商建筑設計師或承包商,作為房屋的筑夢師,他們手握。

3框架構造 在建房時要盡量選擇框架結構,因為框架結構的房屋更不需要用到紅磚和鋼筋混凝土,這樣在造價上會省很多錢4屋頂設計 農村很多人都喜歡使用混凝土屋頂,之后再在鋼制的架子上鋪設瓦片,這樣既能節省建房成本。
總平面圖展示自建房四周環境,提供整體規劃說明#xF3E2立面圖立面圖包括正立面側立面背立面和立面陰影圖,展現立體效果#xF307效果圖效果圖逼真呈現建成后房屋效果,讓你預見美好家園#xF50D剖面圖剖面圖展示房屋內部結構,讓你了解內部構造。
房屋構造圖去哪里查
1、建筑工程施工圖簡稱“施工圖”,是表示工程項目總體 布局,建筑物的外部形狀內部布置結構 構造內外裝修材料做法以及設備施工 等要求的圖樣 問題五什么是房屋框架結構怎么辨別 一般而言,建筑物以其結構類訂的。
2、問題九如何看懂房屋平面圖 黑點是構造柱斜紋是剪力墻空白墻體是隔墻這些需系統學習建筑學才可問題十房地產,建筑圖紙怎么看 先把圖紙分開,找出建施圖和結施圖在建施圖中,找到平面布置圖,找到標高,找到。
3、1 不是承重墻,能敲 2 如果住一樓煙道敲掉應該無所謂,但是規定是不行的,只要樓上住戶沒有投訴即可。

4、尺寸使用材料要求和構件的詳細構造的圖紙它是房屋施工的依據房屋結構圖是關于承重構件的布置,使用的材料,形狀大小以及內部構造的工程圖樣,是承重構件以及其他受力構件施工的依據。
免責聲明: 本站提供的任何內容版權均屬于相關版權人和權利人,如有侵犯你的版權。 請來信指出,我們將于第一時間刪除! 所有資源均由免費公共網絡整理而來,僅供學習和研究使用。請勿公開發表或 用于商業用途和盈利用途。
本文鏈接:http://m.whxzws.com/ziyuan/20476.html

發表評論