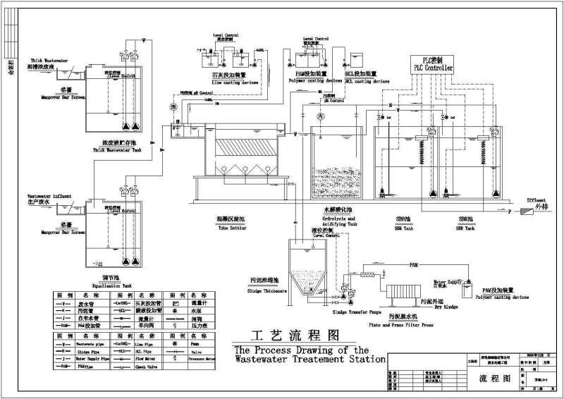
印染廢水處理工藝流程圖水處理工藝流程圖
一下是逆流循環系統 圖是我設計的 本方案采用逆流式循環方式,即游泳池的全部循環水量,經設在游泳池底部布水口送入池內,再由設在池壁的回水口取回使用過的相應體積的水,通過循環水處理設備進行凈化處理加藥過濾。
二級反滲透設備工藝流程圖二級反滲透設備應用領域有哪些在應用領域這塊主要是超純水制備中水回用項目醫藥純化水處理等方面比較多,具體的領域有醫療制藥純化水電子行業超純水半導體行業超純水石油化工水處理鍋爐。
用此法從甘草中可提取分離出甘草甜素結晶以含生物堿黃酮水溶性酚性化合物和無機礦物質的4種中藥有效部位的單味藥材黃連葛根丹參石膏水提液為樣本,在LD605型樹脂上進行動態吸附研究,比較其吸附特性參數。
長進很快的你要的污水處理工藝流程圖我這里很多圖紙,都是大型污水處理廠的施工圖紙以后直接找我要就是了另外,網易給排水和水世界這兩個網站上有很多圖紙,你可以輕易下載到供你學習。
但允許水分子透過,反滲透復合膜脫鹽率一般大于98%,它們廣泛用于工業純水及電子超純水制備,飲用純凈水生產,鍋爐給水等過程,在離子交換前使用反滲透設備可大幅度降底操作用水和廢水的排放量反滲透水處理原理圖如下。
不都是的流程圖注重的是工藝流程,只要版面布置合理,能表示清楚水處理設施的流程即可盡量按照11的比例畫是看圖方便,而且美觀但水處理設備之間管道復雜,比如有各種加藥裝置等,那么這部分的設備一般會放置到圖的邊角。

一般地表水處理流程,適用于濁度小于3mg 每L的河流水 709 發布于20120503 舉報 評論 0 0 為您推薦 污水處理工藝 常規給水處理工藝圖 給水處理常規工藝混凝 給水處理的典型工藝 常規給水廠工藝流程圖 城市給水。
需要進行牛糞的干濕分離,然后再爆氧,經過三級氧化,可以達到排放的標準。
免責聲明: 本站提供的任何內容版權均屬于相關版權人和權利人,如有侵犯你的版權。 請來信指出,我們將于第一時間刪除! 所有資源均由免費公共網絡整理而來,僅供學習和研究使用。請勿公開發表或 用于商業用途和盈利用途。
本文鏈接:http://m.whxzws.com/ziyuan/15424.html
發表評論