客廳立面圖手繪圖片高清客廳立面圖
1、一客廳立面圖1大陽臺打通做成一個休閑空間,擴大了客廳的空間,又增加了家庭的溫馨,增加了視覺效果,在配色方面使用了清新的亮色,原木色的搭配讓人心回歸本色2極具東方美學的新中式巧妙的結合西方裝飾元素,在東西方。
2、立體圖就是效果圖的意思,你說的立面圖是寫零的那張,就是一個面的意思,可以給你放一個立體效果和一個立面摻考看看吧。
3、01 首先我們畫出房屋的整體結構圖,如圖所示02 在整體結構圖上畫出客廳內的家居圖形,如圖所示03 再在整體架構上畫出餐廳的桌椅圖形,如圖所示04 在畫出次臥室內的床鋪和床頭柜的圖形,如圖所示05 再畫出廁所內的。
4、趙彬室內立面設計系統解析高清視頻鏈接 提取碼 dv7a 復制這段內容后打開百度網盤手機App,操作更方便哦 若資源有問題歡迎追問~。
5、注本套教程共3節,分別包括客廳平面圖的繪制1客廳立面圖A的繪制2客廳立面圖B的繪制3請注意下載完整主要知識點1繪制客廳平面圖的標注2繪制索引符號簡要操作步驟第一步打開整體室內平面。
6、一平面圖跟立面圖的區別平面圖是從上到下可以去測量每個房間的水平面,每個房子的不同功能的擺放,家具大布置,都能做圖上顯現出來,圖上還有所以啊房間跟要是用的面積的尺寸跟長短立面圖是你從圖上就可以看到所有房間。
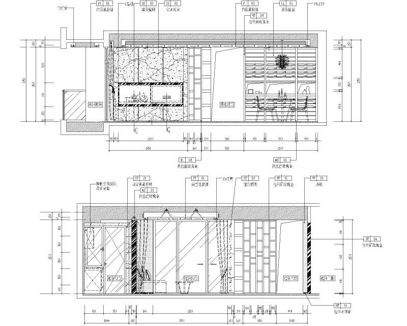
7、為了方便看懂立面圖,即立面圖中客廳A立面,客廳立面等中的ABCD是根據索引圖中所標的對應同時CAD具有良好的用戶界面,通過交互菜單或命令行方式便可以進行各種操作它的多文檔設計環境,讓非計算機專業人員也能很快地。
8、我一般只在祥圖,墻身節點才粗略表示下,客廳天花圖太復雜了 標高有五個 怎么畫出立面 10分 用手畫cad頂面圖,立面圖標準畫法1天花有什么就畫什么啊 排氣扇 空調什么的,2吊頂當然要注明材料啦 拉條引線引到空白。
9、它是運用三維立體軟件對設計方案做出接近于裝修完成后實際效果的表現,但是大部分效果圖和最終的場景效果還是會有一定的差距的由于效果圖的制作成本較高,裝飾設計師通常只提供“客廳”“餐廳”“臥室”以及重要立面的效果。
10、3給水走向圖 給水走向圖是關于廚房衛生間等處的給排水線路的布置圖給水管道的管徑尺寸取水位置及高度管線排布系統等是該圖的重點在水路施工中要十分注重,要以此圖為基礎4立面圖局部放大圖和節點詳圖 立。
11、施工圖紙通常以便于施工隊施工為目的 一套完整的室內設計圖紙通常會含原始圖,拆墻圖,砌墻圖,設計圖,水暖電圖,燈具圖,吊頂圖,鋪地圖,主要柜體家具圖,立面圖,詳細節點大樣圖等對于重點圖紙需要標明材質,顏色及。
12、所以說,沒有經過設計的裝修是不會成功的合格的裝修設計首先應該是完整的,其中包括1設計總說明2總平面圖大的公寓別墅要有分區域或各居室平面圖3各部位立面圖及剖面圖4節點大樣圖5固定家具制作圖。
13、一站式整體家裝原始平面圖一站式整體家裝平面布置圖客廳掛畫尺寸參考圖主臥室立面圖客廳大至沙發,小至窗簾臺燈掛畫等都在軟裝設計圖上清晰地體現出來了,整個風格沉穩大氣主臥的大床風格和家居整體相一致另外,在設計圖。
14、不用啊,建筑立面,就是層高的一個標高就好了,如果是錯層的,那就在最近測標注高度,標在建筑的兩側而不是建筑立面上。
15、是一樣的,平面,立面,剖面都是表現該物體不同尺寸。
16、2平面方案圖要有備選方案3天花布局圖 4地面布局圖 5給排水系統 6電力及多媒體分布圖隱蔽工程維修備用圖,中央空調方案,音響,安防控制7墻體土建工程圖哪些地方拆了,哪些地方砌了8施工立面圖客。
17、施工圖應該是四十多張以上像戶型平面頂地水電立面剖面,室內家裝與工裝的施工圖3d給倆份現代的你數數看,一些不必要的圖去掉就是了。

免責聲明: 本站提供的任何內容版權均屬于相關版權人和權利人,如有侵犯你的版權。 請來信指出,我們將于第一時間刪除! 所有資源均由免費公共網絡整理而來,僅供學習和研究使用。請勿公開發表或 用于商業用途和盈利用途。
本文鏈接:http://m.whxzws.com/ziyuan/14996.html
發表評論